Amadeus Immobilien - Petersheim Lengstein Ritten Wohnung kaufen Amadeus 2000

PETERSHEIM

Longostagno – Renon

In una bella posizione tranquilla, con una fantastica vista sullo Sciliar nel centro di Lengstein sul Renon.


Il design moderno della pianta, con aree soggiorno/pranzo a pianta aperta e generose finestre, promette un’esperienza abitativa unica. La costruzione di alta qualità dell’edificio e i moderni arredi degli appartamenti garantiscono inoltre un alto livello di conservazione del valore per il futuro.

Amadeus Immobilien - EIN End Grundriss 1UG VK W1

Appartamento 1

Trilocale con giardino

.

La camera

Superficie abitativa

Spazio di vendita al dettaglio

0

83,73 m²

119,31 m²

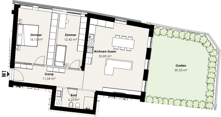
Amadeus Immobilien - EIN End Grundriss 1UG VK W2

Appartamento 1

Trilocale con giardino

.

La camera

Superficie abitativa

Spazio di vendita al dettaglio

0

67,57 m²

102,26 m²

Amadeus Immobilien - EIN End Grundriss EG VK W4

Appartamento 1

Trilocale con giardino e

Garage doppio direttamente dietro

La camera

Superficie abitativa

Spazio di vendita al dettaglio

0

66,22 m²

141,27 m²

Amadeus Immobilien - 2023 8 14 Petersheim EIN End Grundriss EG VK W4

Appartamento 4

Quadrilocale con giardino

La camera

Superficie abitativa

Spazio di vendita al dettaglio

1

69,37 m²

113,91 m²

Amadeus Immobilien - EIN End Grundriss EG VK W5

Appartamento 5

Bilocale con giardino

La camera

Superficie abitativa

Spazio di vendita al dettaglio

1

41,59 m²

81,80 m²

Amadeus Immobilien - EIN End Grundriss EG VK W6

Appartamento 6

Bilocale

La camera

Superficie abitativa

Spazio di vendita al dettaglio

1

40,40 m²

58,09 m²3

Amadeus Immobilien - EIN End Grundriss EG VK W7

Appartamento 7

Trilocale con balcone

La camera

Superficie abitativa

Spazio di vendita al dettaglio

1

53,67 m²

79,34 m²

Amadeus Immobilien - EIN End Grundriss EG VK W8

Appartamento 8

Bilocale con balcone

La camera

Superficie abitativa

Spazio di vendita al dettaglio

1

45,22 m²

68,65 m²

Amadeus Immobilien - EIN End Grundriss EG VK W9

Appartamento 9

Quadrilocale con giardino

La camera

Superficie abitativa

Spazio di vendita al dettaglio

1

69,32 m²

135,48 m²

Amadeus Immobilien - EIN End Grundriss OG1 VK W10

Appartamento 10

Quadrilocale con terrazza

La camera

Superficie abitativa

Spazio di vendita al dettaglio

2

69,35 m²

106,39 m²

Amadeus Immobilien - EIN End Grundriss OG1 VK W11

Appartamento 11

Bilocale con terrazza

La camera

Superficie abitativa

Spazio di vendita al dettaglio

2

41,59 m²

70,41 m²

Amadeus Immobilien - EIN End Grundriss OG1 VK W12

Appartamento 12

Trilocale – Duplex

La camera

Superficie abitativa

Spazio di vendita al dettaglio

2

40,40 m²

58,27 m²

Amadeus Immobilien - EIN End Grundriss OG1 VK W13

Appartamento 13

Trilocale con balcone

La camera

Superficie abitativa

Spazio di vendita al dettaglio

2

53,76 m²

79,87 m²

Amadeus Immobilien - 2023 8 14 Petersheim EIN End Grundriss OG1 VK W14

Appartamento 14

Trilocale – Duplex

La camera

Superficie abitativa

Spazio di vendita al dettaglio

2 + DG

127,20 m²

199,53 m²

Amadeus Immobilien - EIN End Grundriss OG1 VK W15

Appartamento 15

Quadrilocale con terrazza

La camera

Superficie abitativa

Spazio di vendita al dettaglio

2

69,49 m²

122,16 m²

Amadeus Immobilien - EIN End Grundriss OG2 VK W16

Appartamento 16

Quadrilocale con terrazza

La camera

Superficie abitativa

Spazio di vendita al dettaglio

3

65,72 m²

113,72 m²

Amadeus Immobilien - 2023 8 14 Petersheim EIN End Grundriss OG2 VK W17

Appartamento 17

Bilocale con terrazza

La camera

Superficie abitativa

Spazio di vendita al dettaglio

3

38,83 m²

75,98 m²

Richiedetelo ora!

Questo sito è protetto da reCAPTCHA e si applicano le norme sulla privacy e i termini di servizio di Google.

Richiedetelo ora!

Questo sito web è protetto da reCAPTCHA e si applicano le norme sulla privacy e le condizioni di utilizzo di Google.  

Richiedetelo ora!

Questo sito web è protetto da reCAPTCHA e si applicano le norme sulla privacy e le condizioni di utilizzo di Google.